Property Description
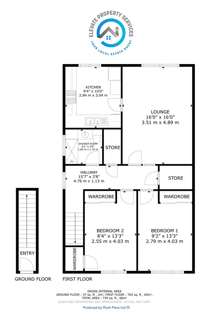
Externally this property benefits from residents parking and a shared garden to the rear. Entrance to the property is from the front of the building with stairs leading to the upper hallway which provides access to most rooms and boasts excellent storage. The neutrally decorated lounge benefits from a large window with open aspects, filling this space with an abundance of natural sunlight.
The spacious fitted kitchen hosts an array of wall and base mounted units and worktops, creating a clean and efficient workspace. The kitchen further benefits from an integrated gas hob and oven. Adequate space is available for a free-standing fridge-freezer and washing machine.
Both bedrooms within this property are well proportioned and both of which also benefit from excellent fitted storage. Completing this property is a shower room fitted with low maintenance wet-wall panelling and comprising of an accessible shower area, vanity unit and W.C.
For those that enjoy shopping, this property is located within a short distance of the popular retail units at Clyde Shopping Centre and Clyde Retail Park. Excellent transport links are also available with major bus routes and Dalmuir train station within walking distance. Also, close to Clydebank Health and Care Centre, Clydebank Leisure Centre and West College Scotland (Clydebank Campus) making this location a popular choice for many purchasers.
We would highly recommend an early viewing before it’s too late! Viewing by appointment - please contact Elevate Property Services to arrange a suitable time or request further information and a copy of the Home Report.
Any areas, measurements or distances quoted are approximate and floorplans are only for illustration purposes and are not to scale. Thank you.
THESE PARTICULARS ARE ISSUED IN GOOD FAITH BUT DO NOT CONSTITUTE REPRESENTATIONS OF FACT OR FORM PART OF ANY OFFER OR CONTRACT.
Please complete the form below and a member of staff will be in touch shortly.
Contact us today.