Faifley Road

Faifley Road, Clydebank

Offers Over £199,995
Sold
3 Bedrooms
2 Bathrooms
1 Receptions

Full Details

Property Information
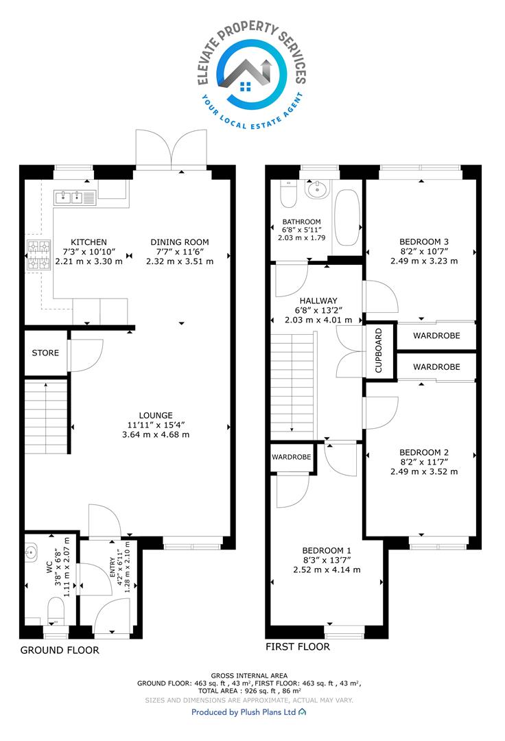
Welcome to No. 44 Faifley Road, situated within the popular Clydebank area in a family friendly development. This fantastic THREE bedroom mid-terrace home offers a superb level of accommodation. Neutrally decorated throughout, this bright and spacious property is presented to market in walk-in condition.

The property benefits from an allocated parking space and additional parking available for visitors. Upon entering through the modern uPVC door, you are welcomed into a reception porch with convenient cloakroom to the side with wash hand basin and W.C. The open-plan lounge, dining and kitchen space is the perfect space for relaxation, dining and entertaining. Large windows to the front and double French doors providing access to the rear garden, create an abundance of natural light. The fitted kitchen really is a must see, designed to a high specification with an array of wall and base mounted units and paired with complementing worktops, this is the perfect space for meal preparation. The kitchen further benefits from a range of quality integrated appliances to include a washing machine, fridge freezer, gas hob, oven and extractor fan.

A staircase leads to the upper floor which benefits from three generously proportioned bedrooms, all of which also boast in-built storage. Further storage is also available within the attic area. A modern family bathroom completes this floor and comprises of shower over bathtub, wash hand basin and W.C.

The property also benefits from double glazing and gas central heating providing all rooms with a lovely warmth all year round. Solar panels on the roof add to the energy efficiency of this property.

The landscaped rear garden is fully enclosed, creating a safe and secure environment for children and pets alike. This area is easily maintained and boasts patio, lawn and decking areas, perfect for socialising and al-fresco dining.

Ideally situated within walking distance of sought after schooling, this property will appeal to a variety of purchasers, including families with children of various ages. With no passing traffic at all, the children within the estate will often play together outside which is lovely to see. Also, within walking distance of the popular Hardgate Cross and with excellent transport links to local shopping centres, or further afield to Glasgow City and Loch Lomond area, the location is ideal. For those that enjoy the outdoors, the property is well situated for nature walks up towards the Greenside Reservoir and surrounding areas. Cochno Farm and Research Centre which is part of the University of Glasgow School of Veterinary Medicine and West College Scotland (Clydebank Campus) are both a short distance away.

We would highly recommend an early viewing before it’s too late! Viewing by appointment - please contact Elevate Property Services to arrange a suitable time or request further information and a copy of the Home Report.

Any areas, measurements or distances quoted are approximate and floorplans are only for illustration purposes and are not to scale. Thank you.

THESE PARTICULARS ARE ISSUED IN GOOD FAITH BUT DO NOT CONSTITUTE REPRESENTATIONS OF FACT OR FORM PART OF ANY OFFER OR CONTRACT.

Room Dimensions
Lounge - 4.68m x 3.64m
Dining - 3.51m x 2.32m
Kitchen - 3.30m x 2.21m
Bedroom One - 4.14m x 2.52m
Bedroom Two - 3.52m x 2.49m
Bedroom Three - 3.23m x 2.49m
Bathroom - 2.03m x 1.79m
W.C. - 2.07m x 1.11m

  • Make Enquiry
  • Floorplan
  • View Brochure
  • View EPC
  • View EPC
  • Virtual Tour

Share this property

Interested?

Contact us today.

Sign up for Property Alerts

Get our latest properties direct to your inbox and never miss out on a new property from Elevate Property Services.

Sell Your Home

Get a free market appraisal on your home. Whether you're looking to sell today or in the future, contact us today.

Property Location

Make an Enquiry

Faifley Road, Clydebank