Osborne Street

Osborne Street, Clydebank

Offers Over £144,995
Sold
3 Bedrooms
2 Bathrooms
1 Receptions

Full Details

Property Information
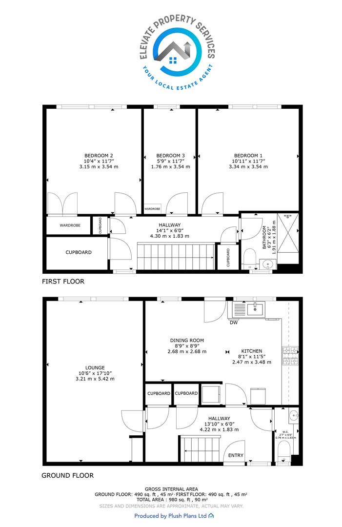
Welcome to No. 22 Osborne Street – Situated in close proximity to popular Primary and Secondary schooling, this property is sure to particularly appeal to families with children of school age. In need of some modernisation, this property has the potential to be a fantastic family home and allowing the purchaser to create a home to their own specification.

To the front of the property, is a low maintenance garden space. Upon entering, you are welcomed into the welcoming hallway which leads to all rooms. The lounge is spacious in size and benefits from a large window filling this space with an abundance of natural light. The kitchen boasts ample unit and workspace and space for dining. Access to the rear garden is also via the kitchen. Completing this floor, is a convenient cloakroom with W.C. and wash-hand basin.

On the upper level, are two well-proportioned double bedrooms and one single bedroom. A shower room with wash-hand basin and W.C completes the upper floor.

The rear garden is in prime position to enjoy sunshine all day long and is fully enclosed providing a safe environment for children and pets alike. With low maintenance slabbing and lawn areas, this is a lovely space for relaxation and dining al-fresco.

Ideally situated within a host of amenities and services and walking distance of highly sought after primary and secondary schooling, this property will particularly appeal to families with children of various ages. Also, with excellent transport links to local shopping centres, or further afield to Glasgow City and Loch Lomond area, the location is ideal.

We would highly recommend an early viewing before it’s too late! Viewing by appointment - please contact Elevate Property Services to arrange a suitable time or request further information and a copy of the Home Report.

Any areas, measurements or distances quoted are approximate and floor plans are only for illustration purposes and are not to scale. Thank you.

THESE PARTICULARS ARE ISSUED IN GOOD FAITH BUT DO NOT CONSTITUTE REPRESENTATIONS OF FACT OR FORM PART OF ANY OFFER OR CONTRACT.

Room Dimensions
Lounge - 5.42m x 3.21m
Kitchen - 3.48m x 2.47m
Dining - 2.68m x 2.68m
Bedroom One - 3.54m x 3.34m
Bedroom Two - 3.54m x 3.15m
Bedroom Three - 3.54m x 1.76m
Bathroom - 1.91m x 1.88m
Cloakroom - 1.83m x 0.79m

  • Make Enquiry
  • Floorplan
  • View Brochure
  • View EPC
  • View EPC
  • Virtual Tour

Share this property

Interested?

Contact us today.

Sign up for Property Alerts

Get our latest properties direct to your inbox and never miss out on a new property from Elevate Property Services.

Sell Your Home

Get a free market appraisal on your home. Whether you're looking to sell today or in the future, contact us today.

Property Location

Make an Enquiry

Osborne Street, Clydebank